Prestigioso immobile direzionale in Strada del Lionetto 6 - Torino (TO)
Zona
Pozzo Strada
Asset
Corporate
Cod.
TOC-17251
Affitto
Prezzo
€ 8.000/mese
600mq
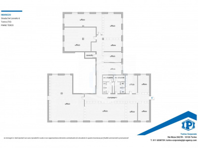
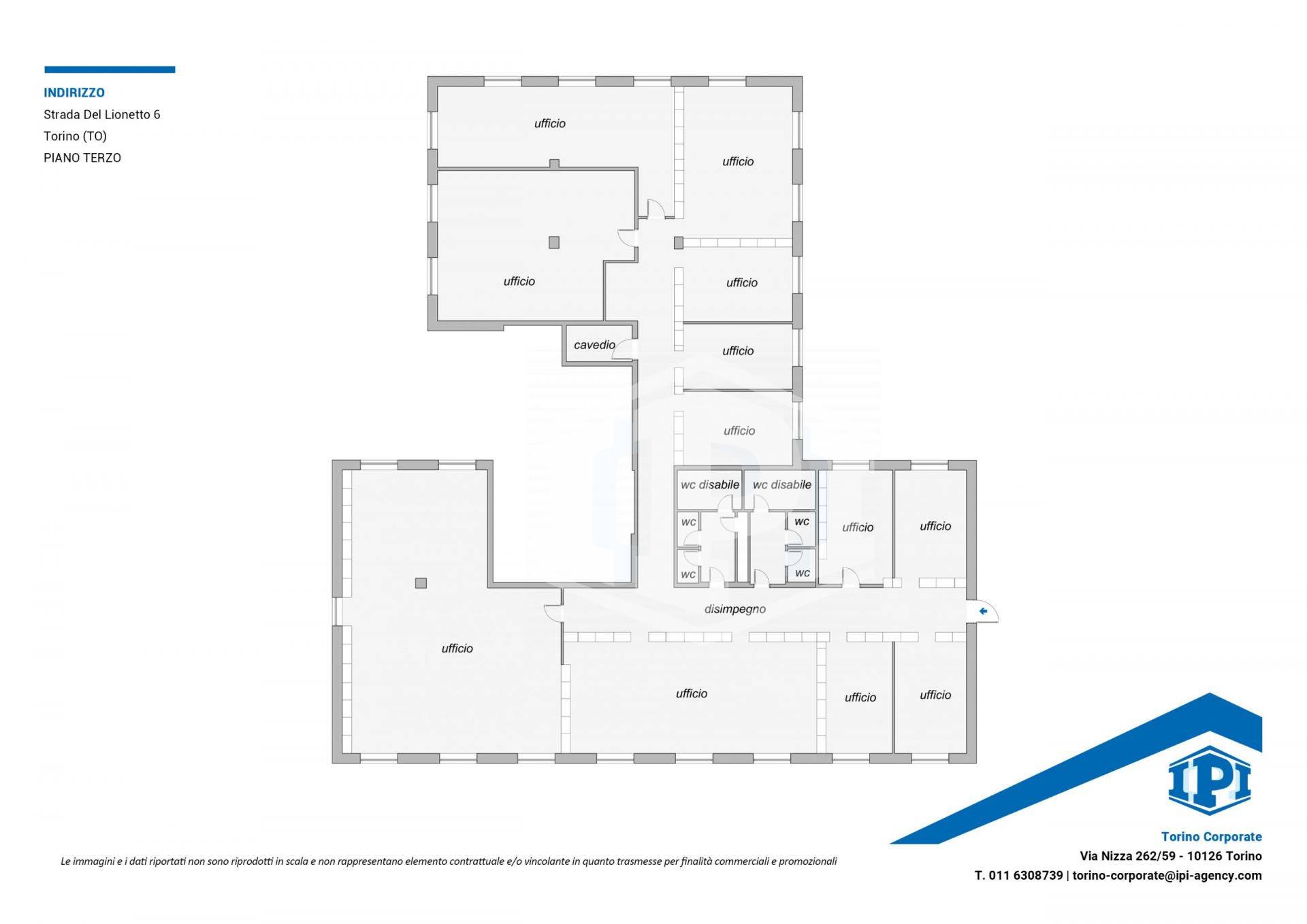
Ufficio in locazione al piano terzo di un immobile direzionale occupato da conduttori multinazionali di primario livello, con servizio di reception e guardiania. L' immobile si sviluppa su sei piani fuori terra oltre a due piani interrati con autorimessa, laboratori e locali magazzini. Aree esterne pertinenziali dedicate ai parcheggi ed al verde.
Gli interni si presentano in ottimo stato di manutenzione edile e impiantistica, risultando ideali per società in cerca di una sede con spazi direzionali ed operativi. E' presente controsoffittatura con corpi illuminanti, impianto di rilevazione fumi, serramenti in alluminio. Il layout interno è definito con pareti mobili ed armadiature. Blocco bagni con cinque servizi oltre a quello dedicato ai soggetti diversamente abili.
Riscaldamento e raffreddamento centralizzato tramite fan coils con contabilizzatore dedicato per l'unità. Disponibilità di posti auto in autorimessa interna all'immobile con un canone di locazione annuo pari a euro 500 oltre IVA e oneri.
L'immobile si trova nelle immediate vicinanze della fermata della metropolitana "Pozzo Strada" (50 mt), in un'area ad alta densità di servizi alla persona. Lo svincolo della tangenziale nord di Torino si trova a circa sei chilometri.
Da oltre 50 anni, il GRUPPO IPI è sinonimo di eccellenza nel Real Estate italiano. La continua espansione del GRUPPO IPI è la testimonianza della volontà di fare la differenza, offrendo un servizio di consulenza di qualità elevata, impegnandosi in progetti rilevanti con soluzioni innovative. Il Gruppo offre, a investitori privati e istituzionali, servizi di consulenza in operazioni di acquisizione o dismissione di singoli immobili o di portafogli immobiliari per tutte le asset class: uffici, retail, industriale e logistica, hospitality, aree da sviluppare, oltre che servizi di property scouting, conduzione di trattative, rinegoziazione contratti.
Gli interni si presentano in ottimo stato di manutenzione edile e impiantistica, risultando ideali per società in cerca di una sede con spazi direzionali ed operativi. E' presente controsoffittatura con corpi illuminanti, impianto di rilevazione fumi, serramenti in alluminio. Il layout interno è definito con pareti mobili ed armadiature. Blocco bagni con cinque servizi oltre a quello dedicato ai soggetti diversamente abili.
Riscaldamento e raffreddamento centralizzato tramite fan coils con contabilizzatore dedicato per l'unità. Disponibilità di posti auto in autorimessa interna all'immobile con un canone di locazione annuo pari a euro 500 oltre IVA e oneri.
L'immobile si trova nelle immediate vicinanze della fermata della metropolitana "Pozzo Strada" (50 mt), in un'area ad alta densità di servizi alla persona. Lo svincolo della tangenziale nord di Torino si trova a circa sei chilometri.
Da oltre 50 anni, il GRUPPO IPI è sinonimo di eccellenza nel Real Estate italiano. La continua espansione del GRUPPO IPI è la testimonianza della volontà di fare la differenza, offrendo un servizio di consulenza di qualità elevata, impegnandosi in progetti rilevanti con soluzioni innovative. Il Gruppo offre, a investitori privati e istituzionali, servizi di consulenza in operazioni di acquisizione o dismissione di singoli immobili o di portafogli immobiliari per tutte le asset class: uffici, retail, industriale e logistica, hospitality, aree da sviluppare, oltre che servizi di property scouting, conduzione di trattative, rinegoziazione contratti.
Caratteristiche
Superficie
600mq
Locali
14
Bagni
4
Stato
Libero al rogito
Classe energetica
Non specificato
Cantina
Sì
Portineria
Sì
Posto auto
Coperto
Posizione
Indirizzo completo
Strada Del Lionetto 6, Torino (TO)
45.075999, 7.6296973
Riassunto
Tipo di contratto
Affitto
Prezzo dell'immobile
€ 8.000/mese
Superficie
600mq