Studio/Ufficio in Via Allioni (TO)
Zona
Centro
Asset
Corporate
Cod.
TO-13105
Vendita
Prezzo
€ 640.000
180mq
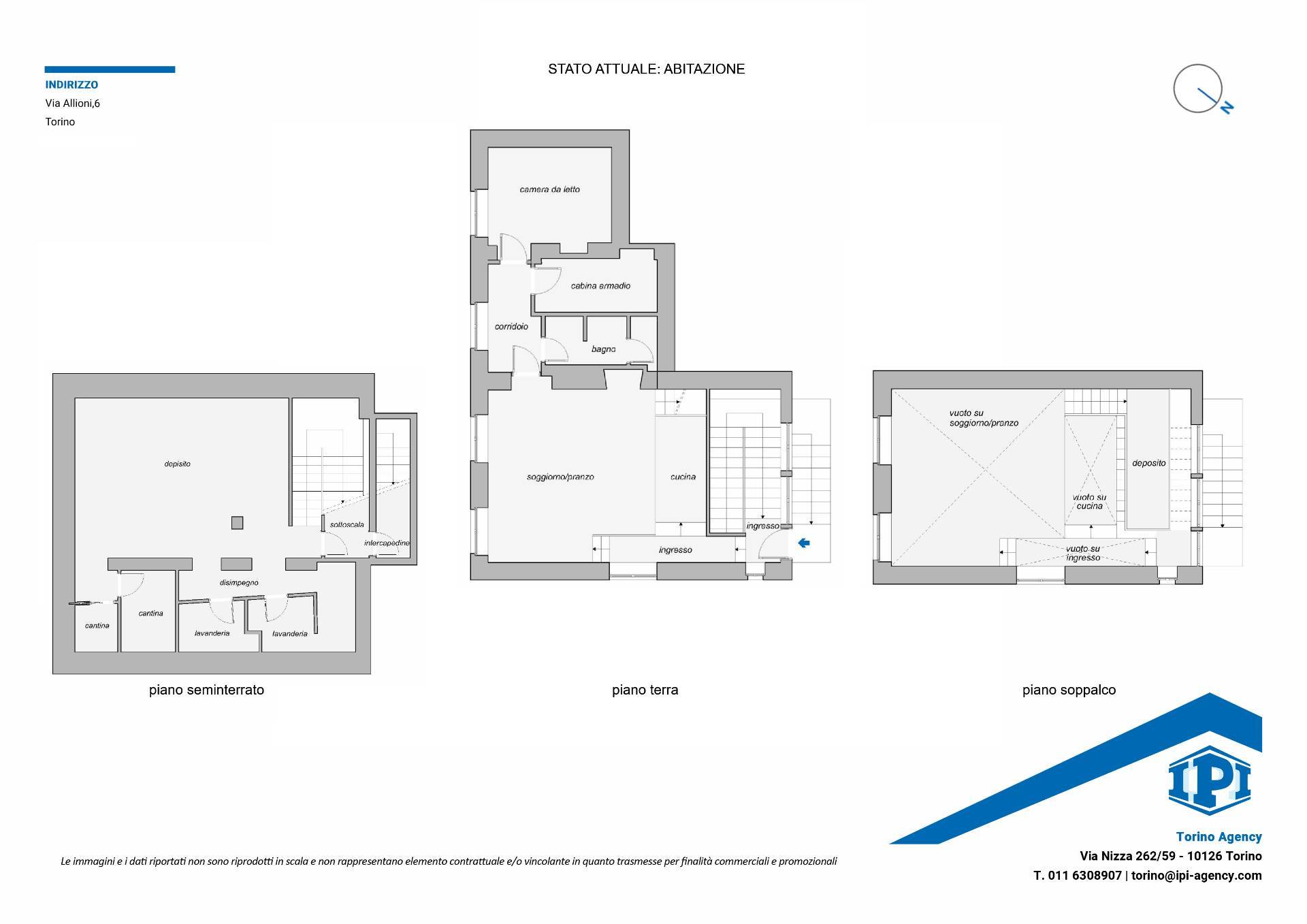
Splendido ufficio/studio professionale attualmente a destinazione abitativa, 180 mq composto da ampio vano con affaccio su cortile/giardino privato, altro vano con zona archivio e bagno interno, data la notevole altezza interna del piano principale è stato possibile creare un soppalco con arredo, una comoda scala adiacente una parete vetrata accede al piano seminterrato dove troviamo un ampio vano con annessi servizi. Completa la proprietà il posto auto coperto che si viene a creare nell'androne chiuso di proprietà.
Gli infissi esterni sono in pvc e vetro camera, i pavimenti sono in parquet negli spazi principali, gres nei bagni e resina nella zona seminterrata, il riscaldamento è autonomo.
L'immobile è in ottimo stato essendo stato completamente ristrutturato di recente con materiali di pregio.
La palazzina in cui è inserita l'unità immobiliare è uno stabile d'epoca di inizio '900. L'unità è sita al piano terra con affaccio su giardino/cortile privato. Le spese condominiali ammontano a circa 1.300 Euro/anno.
La zona di riferimento è il quartiere Quadrilatero, zona storica del centro cittadino che ospita punti di ritrovo, ristoranti e locali tipici. Nelle immediate vicinanze:
-290 mt da fermate autobus e tram Statuto Cap;
-550 mt da metropolitana stazione "XVIII Dicembre";
-750 mt da Stazione FS "Porta Susa";
-1,3 km da Grattacielo Intesa Sanpaolo.
Gli infissi esterni sono in pvc e vetro camera, i pavimenti sono in parquet negli spazi principali, gres nei bagni e resina nella zona seminterrata, il riscaldamento è autonomo.
L'immobile è in ottimo stato essendo stato completamente ristrutturato di recente con materiali di pregio.
La palazzina in cui è inserita l'unità immobiliare è uno stabile d'epoca di inizio '900. L'unità è sita al piano terra con affaccio su giardino/cortile privato. Le spese condominiali ammontano a circa 1.300 Euro/anno.
La zona di riferimento è il quartiere Quadrilatero, zona storica del centro cittadino che ospita punti di ritrovo, ristoranti e locali tipici. Nelle immediate vicinanze:
-290 mt da fermate autobus e tram Statuto Cap;
-550 mt da metropolitana stazione "XVIII Dicembre";
-750 mt da Stazione FS "Porta Susa";
-1,3 km da Grattacielo Intesa Sanpaolo.
Caratteristiche
Superficie
180mq
Locali
2
Bagni
2
Stato
Libero al rogito
Classe energetica
G
Giardino
Privato
Cantina
Sì
Posto auto
Coperto
Posizione
Indirizzo completo
Via Carlo Allioni 6, Torino (TO)