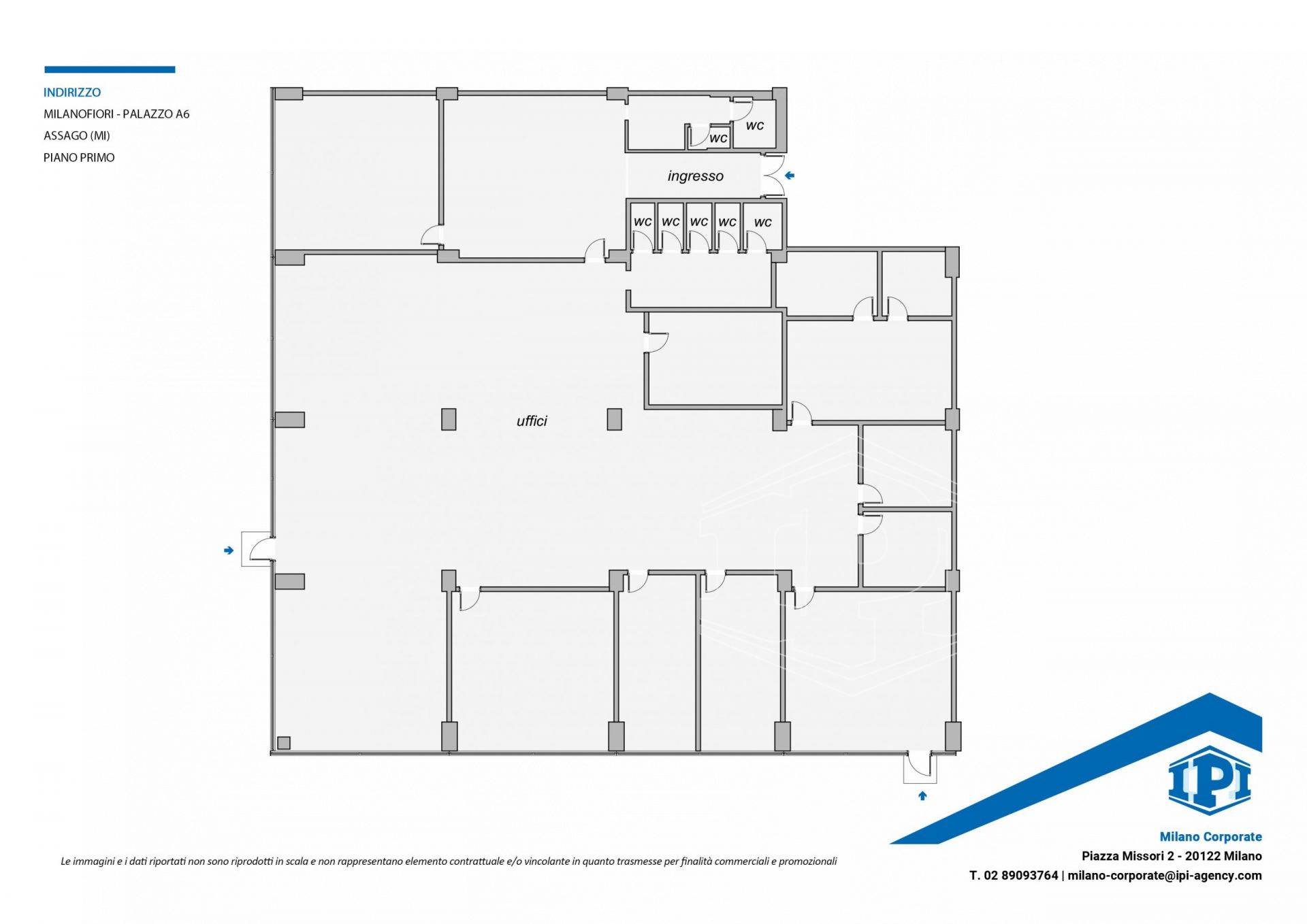
Ufficio in Milanofiori - Strada 4, Palazzo A6 - Assago (MI)
Asset
Corporate
Cod.
MIC-00337
Affitto
Prezzo
€ 12.500/mese
1000mq
All'interno del comparto direzionale Milanofiori, nel Palazzo A6, proponiamo in locazione un ampio ufficio di 1.000 m² al primo piano, completamente ristrutturato con finiture di pregio, per offrire massima flessibilità e ambienti moderni.
Gli spazi, caratterizzati da ampie vetrate a tutta altezza e grande luminosità naturale, garantiscono un ambiente di lavoro confortevole, funzionale e di forte impatto visivo. Gli uffici sono dotati di impianti caldo/freddo di ultima generazione, controsoffitti tecnici con corpi illuminanti integrati e impianti dati e fonia a norma, assicurando servizi di livello corporate.
La posizione è strategica: a pochi passi dalla fermata MM2 Assago Milanofiori Forum e vicino alla Tangenziale Ovest e all'Autostrada A7 Milano–Genova, con collegamenti rapidi verso Milano e l'hinterland.
L'area circostante è ricca di spazi verdi, offrendo un contesto di grande vivibilità e benessere, ideale per chi desidera un equilibrio tra lavoro e qualità della vita.
Il comparto di Milanofiori è uno dei poli direzionali più prestigiosi e completi dell'area milanese, con centro congressi, un hotel, fitness center, ristoranti, bar e numerosi servizi commerciali. Un ambiente dinamico e professionale, immerso nel verde, perfetto per aziende che vogliono distinguersi e offrire ai propri collaboratori un luogo di lavoro moderno e stimolante.
Disponibilità: luglio 2026.
IPI è un gruppo specializzato nella consulenza e nei servizi immobiliari a investitori e operatori istituzionali, aziende e privati. Attraverso le diverse linee di business delle società controllate, IPI copre a 360 gradi i servizi al real-estate: gestione, valorizzazione, promozione e sviluppo immobiliare, consulenza, intermediazione, valutazioni, due diligence e analisi di mercato. IPI è anche una investment company con un rilevante patrimonio immobiliare proprio.
IPI Agency è presente sul territorio nazionale, con filiali a Torino, Milano, Genova, Bologna, Padova, Firenze, Roma, Napoli e Bari.
Filiale di Milano Corporate
Piazza Missori 2
20122 Milano (MI)
Tel. 0289093764
milano-corporate@ipi-agency.com
www.ipi-agency.com
Gli spazi, caratterizzati da ampie vetrate a tutta altezza e grande luminosità naturale, garantiscono un ambiente di lavoro confortevole, funzionale e di forte impatto visivo. Gli uffici sono dotati di impianti caldo/freddo di ultima generazione, controsoffitti tecnici con corpi illuminanti integrati e impianti dati e fonia a norma, assicurando servizi di livello corporate.
La posizione è strategica: a pochi passi dalla fermata MM2 Assago Milanofiori Forum e vicino alla Tangenziale Ovest e all'Autostrada A7 Milano–Genova, con collegamenti rapidi verso Milano e l'hinterland.
L'area circostante è ricca di spazi verdi, offrendo un contesto di grande vivibilità e benessere, ideale per chi desidera un equilibrio tra lavoro e qualità della vita.
Il comparto di Milanofiori è uno dei poli direzionali più prestigiosi e completi dell'area milanese, con centro congressi, un hotel, fitness center, ristoranti, bar e numerosi servizi commerciali. Un ambiente dinamico e professionale, immerso nel verde, perfetto per aziende che vogliono distinguersi e offrire ai propri collaboratori un luogo di lavoro moderno e stimolante.
Disponibilità: luglio 2026.
IPI è un gruppo specializzato nella consulenza e nei servizi immobiliari a investitori e operatori istituzionali, aziende e privati. Attraverso le diverse linee di business delle società controllate, IPI copre a 360 gradi i servizi al real-estate: gestione, valorizzazione, promozione e sviluppo immobiliare, consulenza, intermediazione, valutazioni, due diligence e analisi di mercato. IPI è anche una investment company con un rilevante patrimonio immobiliare proprio.
IPI Agency è presente sul territorio nazionale, con filiali a Torino, Milano, Genova, Bologna, Padova, Firenze, Roma, Napoli e Bari.
Filiale di Milano Corporate
Piazza Missori 2
20122 Milano (MI)
Tel. 0289093764
milano-corporate@ipi-agency.com
www.ipi-agency.com
Caratteristiche
Superficie
1.000mq
Locali
1
Bagni
1
Stato
Dato in locazione
Classe energetica
B
Posizione
Indirizzo completo
Milanofiori - Strada 4 Palazzo A6, Assago (MI)
45.3974207, 9.1479923
Riassunto
Tipo di contratto
Affitto
Prezzo dell'immobile
€ 12.500/mese
Superficie
1.000mq