Trilocale in Via Amedeo Maiuri 33, Napoli (NA)
Zona
Bagnoli
Asset
Residenziale
Cod.
NA-17634
Vendita
Prezzo
€ 100.000
55mq
Bagnoli – Opportunità in zona strategica, a pochi passi dal mare, più precisamente in Via Maiuri.
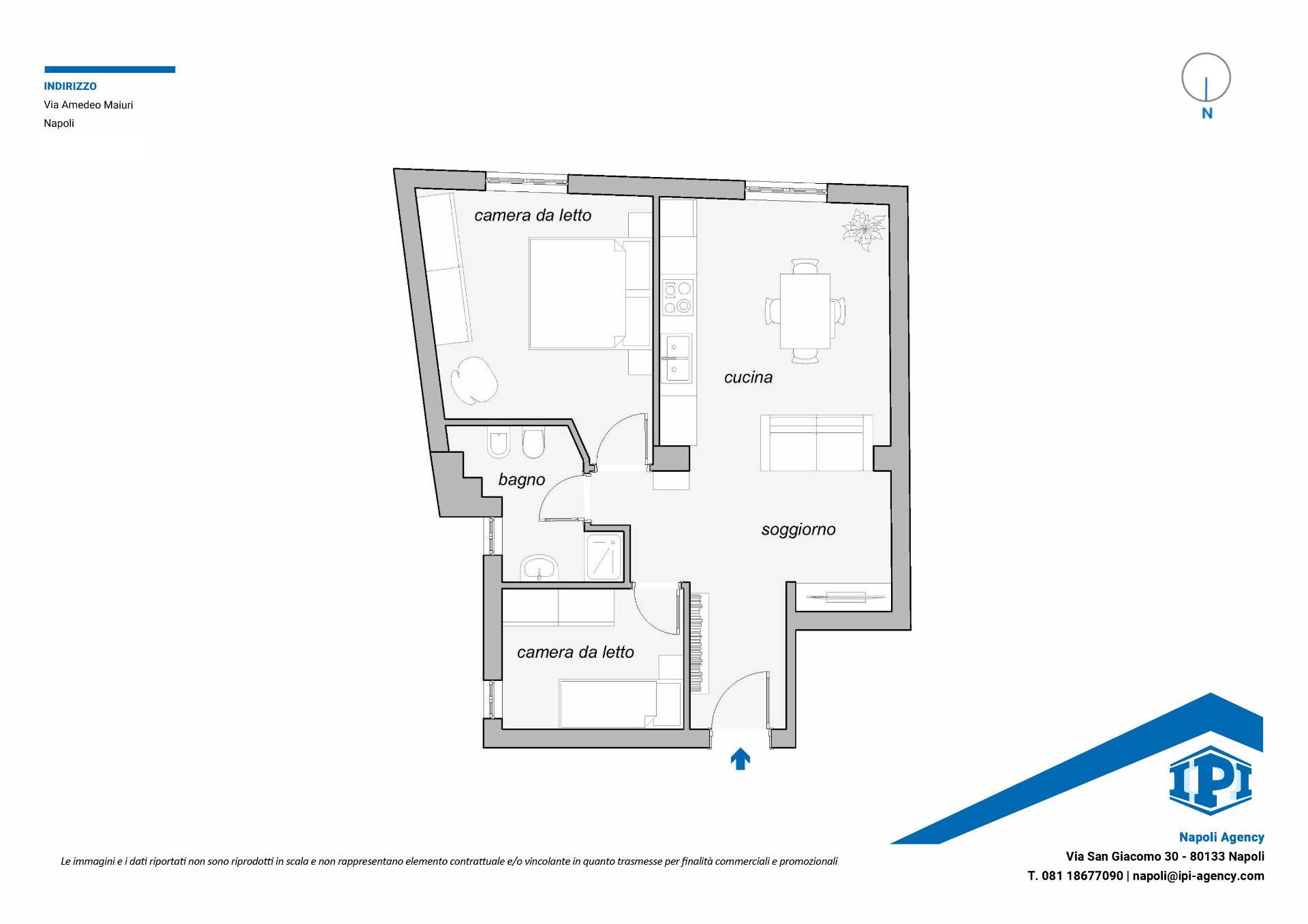
In contesto di edilizia privata, IPI AGENCY propone in vendita un trilocale posto al piano rialzato, ideale sia per uso personale che per investimento.
L'immobile è composto da ingresso, zona giorno con angolo cottura, camera da letto, cameretta e bagno. Tutti gli ambienti sono dotati di finestra, garantendo una buona luminosità; dalla zona giorno si intravede anche un piacevole scorcio di mare.
La soluzione si presenta completamente da ristrutturare, offrendo così la possibilità di personalizzare gli spazi secondo le proprie esigenze.
La posizione rappresenta uno dei principali punti di forza: ci troviamo in una zona vivace e ben servita, a breve distanza da attività commerciali, fermata della Cumana e metropolitana. Inoltre, il quartiere è interessato da importanti sviluppi e sarà protagonista di eventi di rilievo internazionale come l'America's Cup, elemento che ne accresce l'interesse anche in ottica futura.
IPI è un gruppo specializzato nella consulenza e nei servizi immobiliari a investitori e operatori istituzionali, aziende e privati. Attraverso le diverse linee di business delle società controllate, IPI copre a 360 gradi i servizi al real-estate: gestione, valorizzazione, promozione e sviluppo immobiliare, consulenza, intermediazione, valutazioni, due diligence e analisi di mercato. IPI è anche una investment company con un rilevante patrimonio immobiliare proprio.
IPI Agency è presente sul territorio nazionale, con filiali a Torino, Milano, Genova, Bologna, Padova, Firenze, Roma, Napoli e Bari
Filiale di Napoli
Via San Giacomo 30
80133 Napoli
Tel. 081/18677090
Whatsapp: 3421290931
napoli@ipi-agency.com
www.ipi-agency.com
In contesto di edilizia privata, IPI AGENCY propone in vendita un trilocale posto al piano rialzato, ideale sia per uso personale che per investimento.
L'immobile è composto da ingresso, zona giorno con angolo cottura, camera da letto, cameretta e bagno. Tutti gli ambienti sono dotati di finestra, garantendo una buona luminosità; dalla zona giorno si intravede anche un piacevole scorcio di mare.
La soluzione si presenta completamente da ristrutturare, offrendo così la possibilità di personalizzare gli spazi secondo le proprie esigenze.
La posizione rappresenta uno dei principali punti di forza: ci troviamo in una zona vivace e ben servita, a breve distanza da attività commerciali, fermata della Cumana e metropolitana. Inoltre, il quartiere è interessato da importanti sviluppi e sarà protagonista di eventi di rilievo internazionale come l'America's Cup, elemento che ne accresce l'interesse anche in ottica futura.
IPI è un gruppo specializzato nella consulenza e nei servizi immobiliari a investitori e operatori istituzionali, aziende e privati. Attraverso le diverse linee di business delle società controllate, IPI copre a 360 gradi i servizi al real-estate: gestione, valorizzazione, promozione e sviluppo immobiliare, consulenza, intermediazione, valutazioni, due diligence e analisi di mercato. IPI è anche una investment company con un rilevante patrimonio immobiliare proprio.
IPI Agency è presente sul territorio nazionale, con filiali a Torino, Milano, Genova, Bologna, Padova, Firenze, Roma, Napoli e Bari
Filiale di Napoli
Via San Giacomo 30
80133 Napoli
Tel. 081/18677090
Whatsapp: 3421290931
napoli@ipi-agency.com
www.ipi-agency.com
Caratteristiche
Superficie
55mq
Locali
3
Camere
2
Bagni
1
Stato
Libero al rogito
Classe energetica
G
Posizione
Indirizzo completo
Via Amedeo Maiuri 33, Napoli (NA)