Villa indipendente - Via Risorgimento n. 16 - Casalmaiocco (LO)
Asset
Residenziale
Cod.
MI-00185
Vendita
Prezzo
€ 295.000
258mq
Casalmaiocco (LO) Bivilla indipendente nel cuore del paese, ampi spazi e grande potenziale.
In pieno centro paese, a pochi passi da supermercato, farmacia, scuole e servizi principali, proponiamo una bi-villa indipendente ideale per chi cerca una soluzione da personalizzare completamente secondo il proprio stile.
L'immobile si sviluppa su tre livelli e offre una metratura generosa che consente una ristrutturazione moderna e funzionale, mantenendo una struttura solida e un tetto già in ottime condizioni.
Composizione:
. piano seminterrato - locali ampi e versatili ideali per ricavare taverna, lavanderia, cantina vini, bagno, locali tecnici e box doppio;
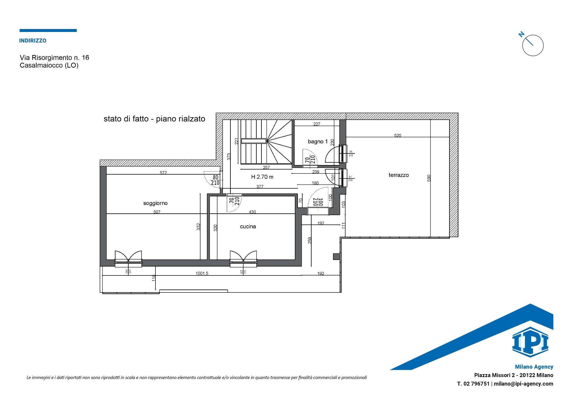
. piano terra - zona giorno luminosa con ambienti ampi, perfetti per creare un grande salone open-space con cucina a vista e servizio;
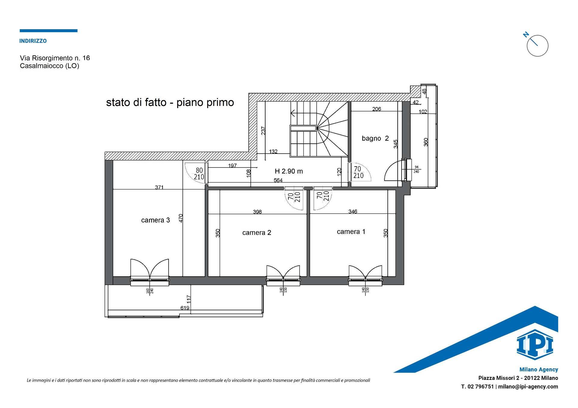
. primo piano - tre camere di buona dimensione e bagno, con possibilità di ottimizzare spazi e distribuzione interna.
All'esterno la proprietà dispone di giardino privato, terrazzo e balconate che garantiscono una piacevole luminosità naturale durante tutta la giornata.
La villa si presenta interamente da ristrutturare, fatta eccezione per tetto e struttura, che risultano in ottimo stato. Questa condizione permette al futuro acquirente di intervenire con libertà progettuale, valorizzando al massimo gli spazi e ottenendo una soluzione moderna in una delle posizioni più comode del paese.
Una proposta adatta a chi cerca spazio, indipendenza e la possibilità di creare una casa su misura.
Per informazioni e appuntamenti contattare IPI Agency - tel. 02796751 - email: milano@ipi-agency.com
IPI è un gruppo specializzato nella consulenza e nei servizi immobiliari a investitori e operatori istituzionali, aziende e privati. Attraverso le diverse linee di business delle società controllate, IPI copre a 360 gradi i servizi al real-estate: gestione, valorizzazione, promozione e sviluppo immobiliare, consulenza, intermediazione, valutazioni, due diligence e analisi di mercato. IPI è anche una investment company con un rilevante patrimonio immobiliare proprio.
IPI Agency è presente sul territorio nazionale, con filiali a Torino, Milano, Genova, Bologna, Padova, Firenze, Roma, Napoli e Bari.
Filiale di Milano
Piazza Missori 2
20122 Milano
Tel. 02796751
milano@ipi-agency.com
www.ipi-agency.com
In pieno centro paese, a pochi passi da supermercato, farmacia, scuole e servizi principali, proponiamo una bi-villa indipendente ideale per chi cerca una soluzione da personalizzare completamente secondo il proprio stile.
L'immobile si sviluppa su tre livelli e offre una metratura generosa che consente una ristrutturazione moderna e funzionale, mantenendo una struttura solida e un tetto già in ottime condizioni.
Composizione:
. piano seminterrato - locali ampi e versatili ideali per ricavare taverna, lavanderia, cantina vini, bagno, locali tecnici e box doppio;
. piano terra - zona giorno luminosa con ambienti ampi, perfetti per creare un grande salone open-space con cucina a vista e servizio;
. primo piano - tre camere di buona dimensione e bagno, con possibilità di ottimizzare spazi e distribuzione interna.
All'esterno la proprietà dispone di giardino privato, terrazzo e balconate che garantiscono una piacevole luminosità naturale durante tutta la giornata.
La villa si presenta interamente da ristrutturare, fatta eccezione per tetto e struttura, che risultano in ottimo stato. Questa condizione permette al futuro acquirente di intervenire con libertà progettuale, valorizzando al massimo gli spazi e ottenendo una soluzione moderna in una delle posizioni più comode del paese.
Una proposta adatta a chi cerca spazio, indipendenza e la possibilità di creare una casa su misura.
Per informazioni e appuntamenti contattare IPI Agency - tel. 02796751 - email: milano@ipi-agency.com
IPI è un gruppo specializzato nella consulenza e nei servizi immobiliari a investitori e operatori istituzionali, aziende e privati. Attraverso le diverse linee di business delle società controllate, IPI copre a 360 gradi i servizi al real-estate: gestione, valorizzazione, promozione e sviluppo immobiliare, consulenza, intermediazione, valutazioni, due diligence e analisi di mercato. IPI è anche una investment company con un rilevante patrimonio immobiliare proprio.
IPI Agency è presente sul territorio nazionale, con filiali a Torino, Milano, Genova, Bologna, Padova, Firenze, Roma, Napoli e Bari.
Filiale di Milano
Piazza Missori 2
20122 Milano
Tel. 02796751
milano@ipi-agency.com
www.ipi-agency.com
Caratteristiche
Superficie
258mq
Locali
5
Camere
3
Bagni
3
Stato
Libero al rogito
Classe energetica
G
Balcone
Presente
Terrazzo
Presente
Giardino
Privato
Cantina
Sì
Box
Doppio
Posizione
Indirizzo completo
Via Risorgimento 16, Casalmaiocco