
Capannone a Funo di Argelato, Bologna (BO)
Zona
Funo
Asset
Corporate
Cod.
BO-00333
Vendita
Prezzo
€ 980.000
1452mq
Funo di Argelato - Ampio capannone in vendita. Attualmente è libero al rogito, pronto per essere acquistato e utilizzato da un nuovo proprietario.
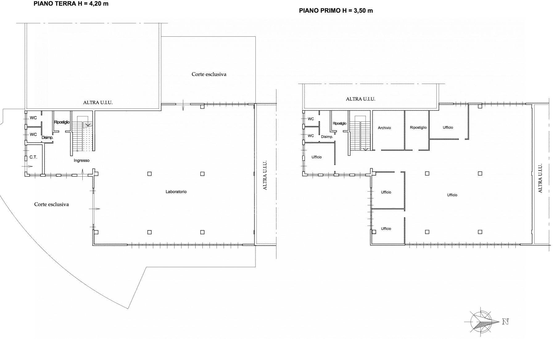
La metratura complessiva è di 1452 mq, distribuiti su due piani.
Lo stato di conservazione è buono, grazie alla manutenzione costante e accurata che è stata effettuata nel corso degli anni. Il capannone dispone di due ingressi, che permettono un facile accesso sia per i veicoli che per il personale.
Inoltre, è dotato di 386 metri quadrati di spazi scoperti, ideali per il parcheggio o per eventuali attività all'aperto.
All'interno, è presente anche una zona uffici di 533 metri quadrati, dotata di tutti i comfort necessari per il lavoro, come impianto di riscaldamento e aria condizionata.
Gli uffici possono essere utilizzati per svolgere attività amministrative o come spazio per riunioni e incontri. L'ampio capannone, grazie alle sue caratteristiche e alla sua posizione strategica, si adatta perfettamente ad attività industriali, artigianali o commerciali.
Inoltre, la sua metratura consente di suddividerlo in diverse aree, offrendo così la possibilità di svolgere più attività contemporaneamente. In sintesi, si tratta di una solida e funzionale struttura, ideale per chi cerca un ampio spazio per la propria attività, in una zona ben collegata e facilmente accessibile.
"IPI è un gruppo specializzato nella consulenza e nei servizi immobiliari a investitori e operatori istituzionali, aziende e privati. Attraverso le diverse linee di business delle società controllate, IPI copre a 360 gradi i servizi al real-estate: gestione, valorizzazione, promozione e sviluppo immobiliare, consulenza, intermediazione, valutazioni, due diligence e analisi di mercato. IPI è anche una investment company con un rilevante patrimonio immobiliare proprio.
IPI Agency è presente sul territorio nazionale, con filiali a Torino, Milano, Genova, Bologna, Padova, Firenze, Roma, Napoli e Bari."
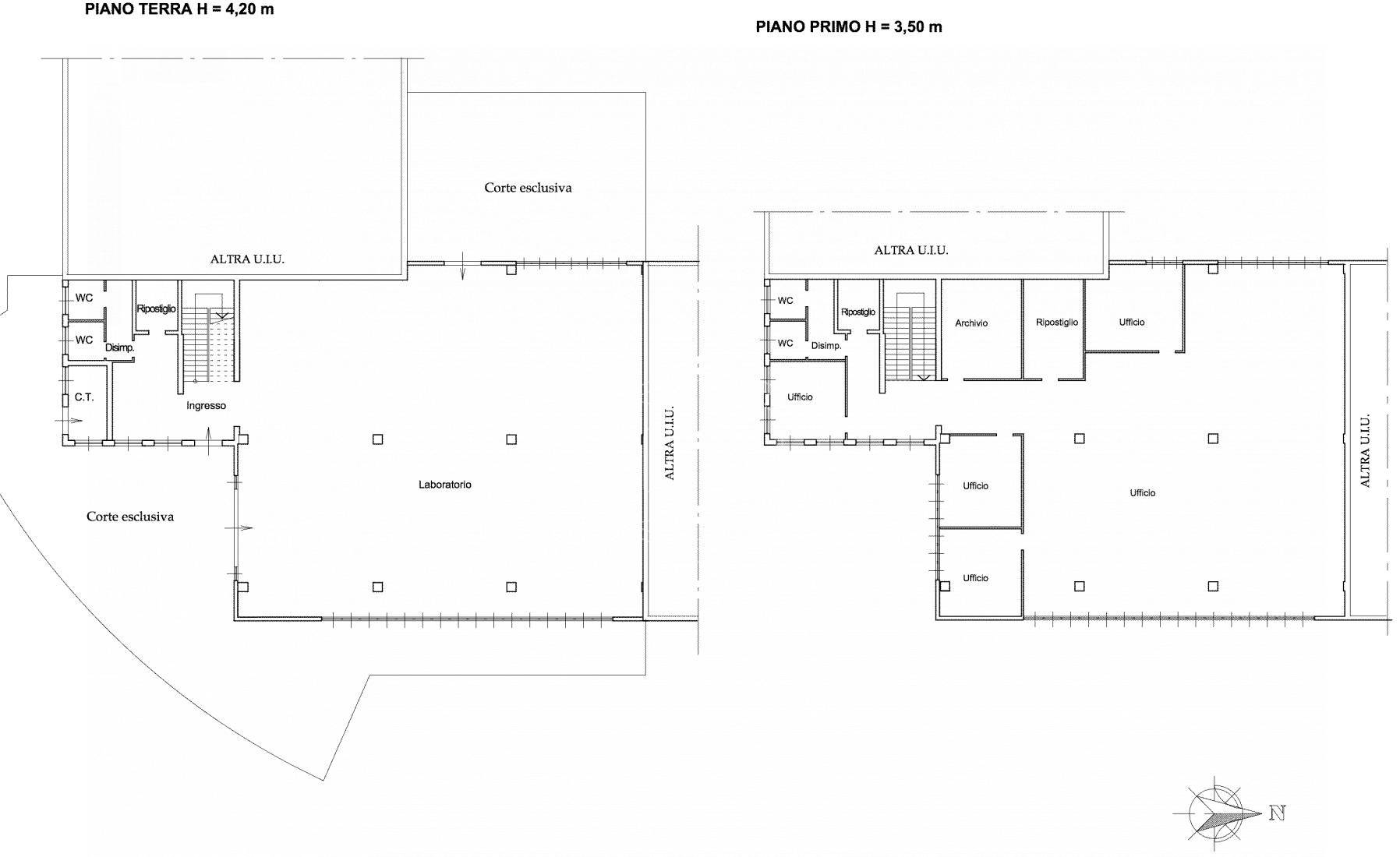
La metratura complessiva è di 1452 mq, distribuiti su due piani.
Lo stato di conservazione è buono, grazie alla manutenzione costante e accurata che è stata effettuata nel corso degli anni. Il capannone dispone di due ingressi, che permettono un facile accesso sia per i veicoli che per il personale.
Inoltre, è dotato di 386 metri quadrati di spazi scoperti, ideali per il parcheggio o per eventuali attività all'aperto.
All'interno, è presente anche una zona uffici di 533 metri quadrati, dotata di tutti i comfort necessari per il lavoro, come impianto di riscaldamento e aria condizionata.
Gli uffici possono essere utilizzati per svolgere attività amministrative o come spazio per riunioni e incontri. L'ampio capannone, grazie alle sue caratteristiche e alla sua posizione strategica, si adatta perfettamente ad attività industriali, artigianali o commerciali.
Inoltre, la sua metratura consente di suddividerlo in diverse aree, offrendo così la possibilità di svolgere più attività contemporaneamente. In sintesi, si tratta di una solida e funzionale struttura, ideale per chi cerca un ampio spazio per la propria attività, in una zona ben collegata e facilmente accessibile.
"IPI è un gruppo specializzato nella consulenza e nei servizi immobiliari a investitori e operatori istituzionali, aziende e privati. Attraverso le diverse linee di business delle società controllate, IPI copre a 360 gradi i servizi al real-estate: gestione, valorizzazione, promozione e sviluppo immobiliare, consulenza, intermediazione, valutazioni, due diligence e analisi di mercato. IPI è anche una investment company con un rilevante patrimonio immobiliare proprio.
IPI Agency è presente sul territorio nazionale, con filiali a Torino, Milano, Genova, Bologna, Padova, Firenze, Roma, Napoli e Bari."
Caratteristiche
Superficie
1.452mq
Stato
Libero al rogito
Classe energetica
Non specificato
Posizione
Indirizzo completo
Via De Giudei, Argelato (BO)