
Capannone in Via San Giusto 5/A - Settimo Torinese (TO)
Asset
Corporate
Cod.
TOC-17348
Vendita
7000mq
IPI Agency propone in vendita nel Comune di Settimo Torinese, in posizione strategica comoda all'ingresso delle principali arterie autostradali TO-MI e TO- AO e in prossimità dell'Autoporto Pescarito, complesso industriale-logistico di circa 7.000 metri quadri complessivi, inserito in un'area completamente recintata di 13.000 metri quadri.
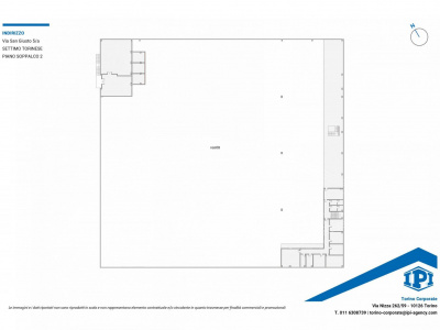
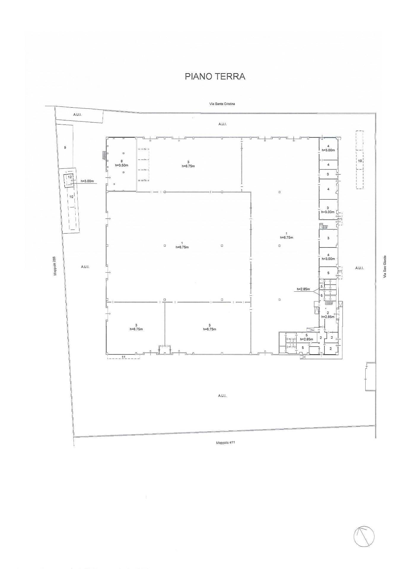
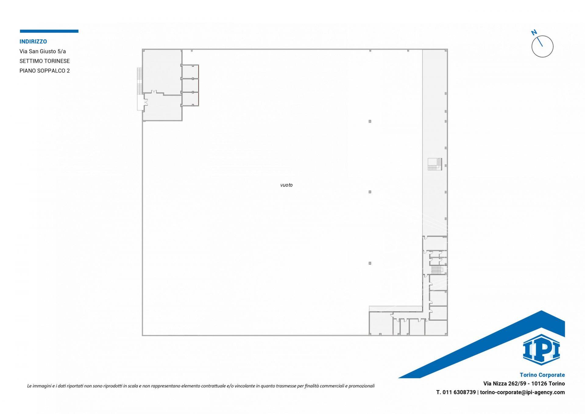
L'immobile è composto da un capannone al piano terra di circa 6.500 mq ad uso logistico/produttivo, dotato di: Impianto di illuminazione, Impianto di riscaldamento, antincendio con Splinker, locali servizi e mensa per il personale, sistema di allarme.
Completano la proprietà uffici disposti su due livelli per 500 metri quadri circa , ideali per attività direzionali e gestionali, ed ampio piazzale e cortile su quattro lati.
Esternamente, il complesso dispone di un ampio piazzale che facilita la movimentazione delle merci, nonché agevoli operazioni di carico e scarico, anche con mezzi pesanti.
Soluzione ideale per attività produttive, logistiche e di distribuzione, grazie alla sua posizione privilegiata e alla funzionalità degli spazi.
Da oltre 50 anni, il GRUPPO IPI è sinonimo di eccellenza nel Real Estate italiano. La continua espansione del GRUPPO IPI è la testimonianza della volontà di fare la differenza, offrendo un servizio di consulenza di qualità elevata, impegnandosi in progetti rilevanti con soluzioni innovative. Il Gruppo offre, a investitori privati e istituzionali, servizi di consulenza in operazioni di acquisizione o dismissione di singoli immobili o di portafogli immobiliari per tutte le asset class: uffici, retail, industriale e logistica, hospitality, aree da sviluppare, oltre che servizi di property scouting, conduzione di trattative, rinegoziazione contratti.
L'immobile è composto da un capannone al piano terra di circa 6.500 mq ad uso logistico/produttivo, dotato di: Impianto di illuminazione, Impianto di riscaldamento, antincendio con Splinker, locali servizi e mensa per il personale, sistema di allarme.
Completano la proprietà uffici disposti su due livelli per 500 metri quadri circa , ideali per attività direzionali e gestionali, ed ampio piazzale e cortile su quattro lati.
Esternamente, il complesso dispone di un ampio piazzale che facilita la movimentazione delle merci, nonché agevoli operazioni di carico e scarico, anche con mezzi pesanti.
Soluzione ideale per attività produttive, logistiche e di distribuzione, grazie alla sua posizione privilegiata e alla funzionalità degli spazi.
Da oltre 50 anni, il GRUPPO IPI è sinonimo di eccellenza nel Real Estate italiano. La continua espansione del GRUPPO IPI è la testimonianza della volontà di fare la differenza, offrendo un servizio di consulenza di qualità elevata, impegnandosi in progetti rilevanti con soluzioni innovative. Il Gruppo offre, a investitori privati e istituzionali, servizi di consulenza in operazioni di acquisizione o dismissione di singoli immobili o di portafogli immobiliari per tutte le asset class: uffici, retail, industriale e logistica, hospitality, aree da sviluppare, oltre che servizi di property scouting, conduzione di trattative, rinegoziazione contratti.
Caratteristiche
Superficie
7.000mq
Classe energetica
Non specificato
Posizione
Indirizzo completo
Torino (TO)