Capannone industriale, Via Romairone, Genova GE
Zona
Bolzaneto
Asset
Corporate
Cod.
GE-01407
Affitto
Prezzo
€ 7.000/mese
1000mq
IPI Agency propone in locazione CAPANNONE INDUSTRIALE a Genova Bolzaneto, via Romairone.
In posizione strategica e comoda all'ingresso autostradale.
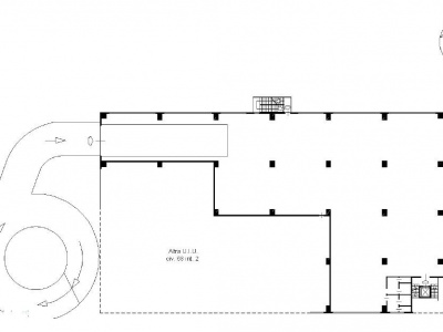
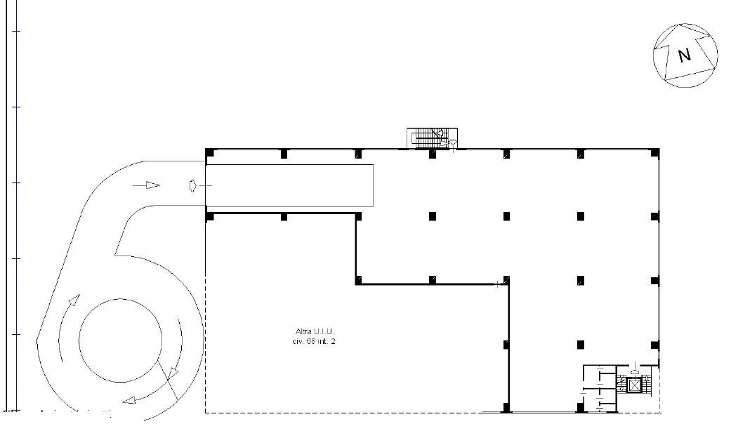
L'unità ha una superficie di 1.000 mq circa, è situata al primo piano dell'edificio ed è carrabile (soletta con portata industriale).
Altezze sotto trave di 6 metri, ideale per attività industriali o logistiche e produttive.
Caratteristiche principali:
Canone Euro 7.000 + iva /mese.
Grazie alla collaborazione con professionisti del settore, offriamo ai nostri clienti un servizio di consulenza dedicato per individuare le migliori soluzioni di mutuo e facilitare l'accesso al finanziamento.
IPI Genova Agency tel. 010 542009 www.ipi-agency.com Funzionario Elisabetta Sighinolfi
IPI è un gruppo specializzato nella consulenza e nei servizi immobiliari a investitori e operatori istituzionali, aziende e privati. Attraverso le diverse linee di business delle società controllate, IPI copre a 360 gradi i servizi al real-estate: gestione, valorizzazione, promozione e sviluppo immobiliare, consulenza, intermediazione, valutazioni, due diligence e analisi di mercato. IPI è anche una investment company con un rilevante patrimonio immobiliare proprio.
IPI Agency è presente sul territorio nazionale, con filiali a Torino, Milano, Genova, Firenze, Bologna, Padova, Roma, Bari e Napoli.
IPI Genova Agency
Via XII Ottobre 2-19° piano
16121 Genova
Tel. 010 542009
Mail: genova@ipi-agency.com
In posizione strategica e comoda all'ingresso autostradale.
L'unità ha una superficie di 1.000 mq circa, è situata al primo piano dell'edificio ed è carrabile (soletta con portata industriale).
Altezze sotto trave di 6 metri, ideale per attività industriali o logistiche e produttive.
Caratteristiche principali:
- Superficie: 1.000 mq circa
- Altezza interna: 6 metri
- servizi
- Ottima accessibilità, comodo all'ingresso autostradale di Genova Bolzaneto.
Canone Euro 7.000 + iva /mese.
Grazie alla collaborazione con professionisti del settore, offriamo ai nostri clienti un servizio di consulenza dedicato per individuare le migliori soluzioni di mutuo e facilitare l'accesso al finanziamento.
IPI Genova Agency tel. 010 542009 www.ipi-agency.com Funzionario Elisabetta Sighinolfi
IPI è un gruppo specializzato nella consulenza e nei servizi immobiliari a investitori e operatori istituzionali, aziende e privati. Attraverso le diverse linee di business delle società controllate, IPI copre a 360 gradi i servizi al real-estate: gestione, valorizzazione, promozione e sviluppo immobiliare, consulenza, intermediazione, valutazioni, due diligence e analisi di mercato. IPI è anche una investment company con un rilevante patrimonio immobiliare proprio.
IPI Agency è presente sul territorio nazionale, con filiali a Torino, Milano, Genova, Firenze, Bologna, Padova, Roma, Bari e Napoli.
IPI Genova Agency
Via XII Ottobre 2-19° piano
16121 Genova
Tel. 010 542009
Mail: genova@ipi-agency.com
Caratteristiche
Superficie
1.000mq
Stato
Libero al rogito
Classe energetica
G
Posizione
Indirizzo completo
Via Romairone, Genova (GE)
44.4776977, 8.8992305
Riassunto
Tipo di contratto
Affitto
Prezzo dell'immobile
€ 7.000/mese
Superficie
1.000mq