Ufficio in Via Dei Valtorta 48 - Milano (MI)
Zona
Monza
Asset
Corporate
Cod.
MIC-00304
Affitto
Prezzo
€ 10.000/mese
500mq
Milano – Via dei Valtorta 48 | Zona Turro / Viale Monza
In una posizione strategica, a pochi minuti dalla fermata della metropolitana M1 Turro e da Viale Monza, facilmente raggiungibile dalla Tangenziale Est e dall'Autostrada A4, proponiamo in locazione uffici all'interno di un moderno complesso direzionale recentemente riqualificato. L'immobile si inserisce in un contesto urbano di ottimo livello, attualmente oggetto di una profonda trasformazione grazie a nuovi sviluppi direzionali e residenziali già in corso.
Il business center, di oltre 50.000 mq complessivi, si sviluppa su tre torri distinte, collegate alla base tra loro da un percorso vetrato coperto che le connette direttamente e ha beneficiato, negli ultimi due anni, di un intervento completo di riqualificazione architettonica ed energetica, mirato a raggiungere i più elevati standard di mercato facendogli ottenere la prestigiosa certificazione LEED Gold.
L'intervento ha interessato:
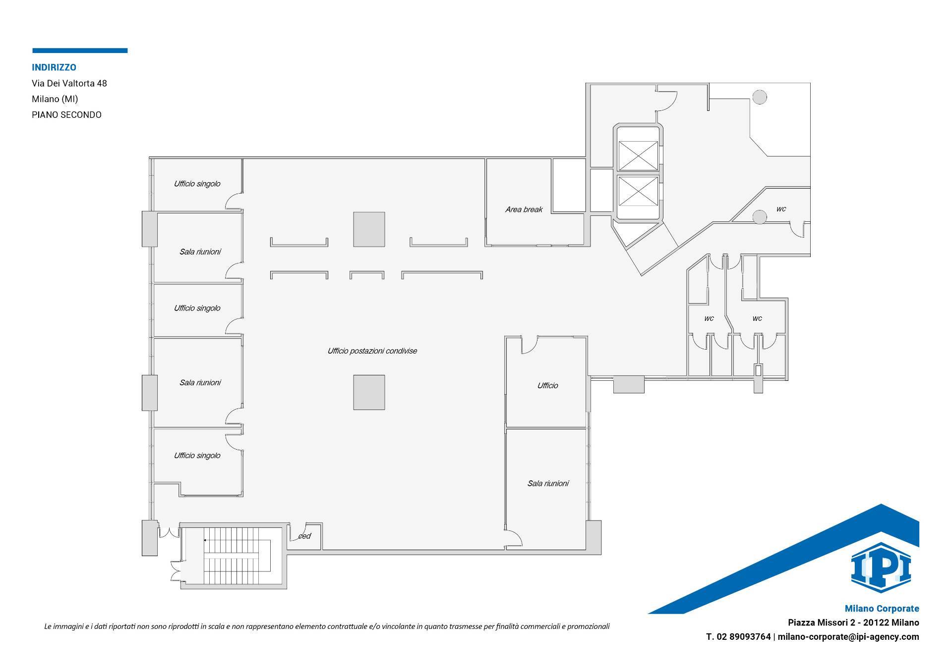
Gli uffici disponibili si trovano al 2° piano, recentemente ristrutturati e pronti all'uso. Le finiture comprendono:
IPI è un gruppo specializzato nella consulenza e nei servizi immobiliari a investitori e operatori istituzionali, aziende e privati. Attraverso le diverse linee di business delle società controllate, IPI copre a 360 gradi i servizi al real-estate: gestione, valorizzazione, promozione e sviluppo immobiliare, consulenza, intermediazione, valutazioni, due diligence e analisi di mercato. IPI è anche una investment company con un rilevante patrimonio immobiliare proprio.
IPI Agency è presente sul territorio nazionale, con filiali a Torino, Milano, Genova, Bologna, Padova, Firenze, Roma, Napoli e Bari.
Filiale di Milano Corporate
Piazza Missori 2
20122 Milano (MI)
Tel. 0289093764
milano-corporate@ipi-agency.com
www.ipi-agency.com
In una posizione strategica, a pochi minuti dalla fermata della metropolitana M1 Turro e da Viale Monza, facilmente raggiungibile dalla Tangenziale Est e dall'Autostrada A4, proponiamo in locazione uffici all'interno di un moderno complesso direzionale recentemente riqualificato. L'immobile si inserisce in un contesto urbano di ottimo livello, attualmente oggetto di una profonda trasformazione grazie a nuovi sviluppi direzionali e residenziali già in corso.
Il business center, di oltre 50.000 mq complessivi, si sviluppa su tre torri distinte, collegate alla base tra loro da un percorso vetrato coperto che le connette direttamente e ha beneficiato, negli ultimi due anni, di un intervento completo di riqualificazione architettonica ed energetica, mirato a raggiungere i più elevati standard di mercato facendogli ottenere la prestigiosa certificazione LEED Gold.
L'intervento ha interessato:
- Le facciate, completamente ridisegnate con un concept architettonico contemporaneo ispirato a criteri di sostenibilità ambientale;
- La realizzazione di due nuove reception indipendenti (una lato Via dei Valtorta e una lato Via Vida);
- La creazione di un'area social comune a disposizione degli utenti;
- Il miglioramento complessivo dei servizi e la valorizzazione dell'intero comparto.
Gli uffici disponibili si trovano al 2° piano, recentemente ristrutturati e pronti all'uso. Le finiture comprendono:
- Controsoffitti completamente ispezionabili;
- Pavimenti sopraelevati su tutta la superficie;
- Corpi illuminanti a basso consumo;
- Impianti elettrici e rete dati a norma;
- Pareti divisorie in vetro, con eventuale possibilità di includere gli arredi esistenti, di proprietà dell'attuale conduttore.
- 2° piano Torre A: 530 mq
- Piano Terra: 1.000 mq
- 1° piano Torre A: 1.000 mq
IPI è un gruppo specializzato nella consulenza e nei servizi immobiliari a investitori e operatori istituzionali, aziende e privati. Attraverso le diverse linee di business delle società controllate, IPI copre a 360 gradi i servizi al real-estate: gestione, valorizzazione, promozione e sviluppo immobiliare, consulenza, intermediazione, valutazioni, due diligence e analisi di mercato. IPI è anche una investment company con un rilevante patrimonio immobiliare proprio.
IPI Agency è presente sul territorio nazionale, con filiali a Torino, Milano, Genova, Bologna, Padova, Firenze, Roma, Napoli e Bari.
Filiale di Milano Corporate
Piazza Missori 2
20122 Milano (MI)
Tel. 0289093764
milano-corporate@ipi-agency.com
www.ipi-agency.com
Caratteristiche
Superficie
500mq
Locali
1
Bagni
1
Classe energetica
A1
Portineria
Sì
Posizione
Indirizzo completo
Via Dei Valtorta 48, Milano (MI)
45.4995024, 9.2274168
Riassunto
Tipo di contratto
Affitto
Prezzo dell'immobile
€ 10.000/mese
Superficie
500mq