Appartamento, Corso Martinetti, Genova, GE
Zona
Sampierdarena
Asset
Residenziale
Cod.
GE-01418
Vendita
Prezzo
€ 55.000
83mq
Corso Martinetti, parte alta - Appartamento di 80 mq con due balconi.
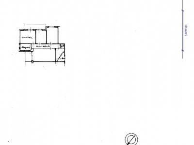
IPI AGENCY- Propone in vendita appartamento sito al terzo piano servito da ascensore, composto da: ingresso, soggiorno con balcone, cucina abitabile con balconata, due camere, bagno e ripostiglio. Internamente è da ristrutturare.
Luminoso con vista nel verde e silenzioso.
Euro 55.000
Disponibile nello stesso palazzo altro appartamento di 60 mq.
Grazie alla collaborazione con professionisti del settore, offriamo ai nostri clienti un servizio di consulenza dedicato per individuare le migliori soluzioni di mutuo e facilitare l'accesso al finanziamento.
IPI Genova Agency tel. 010 542009 www.ipi-agency.com Funzionario Flavio Napolitano
IPI è un gruppo specializzato nella consulenza e nei servizi immobiliari a investitori e operatori istituzionali, aziende e privati. Attraverso le diverse linee di business delle società controllate, IPI copre a 360 gradi i servizi al real-estate: gestione, valorizzazione, promozione e sviluppo immobiliare, consulenza, intermediazione, valutazioni, due diligence e analisi di mercato. IPI è anche una investment company con un rilevante patrimonio immobiliare proprio.
IPI Agency è presente sul territorio nazionale, con filiali a Torino, Milano, Genova, Firenze, Bologna, Padova, Roma, Bari e Napoli.
IPI Genova Agency
Via XII Ottobre 2-19° piano
16121 Genova
Tel. 010 542009
Mail: genova@ipi-agency.com
IPI AGENCY- Propone in vendita appartamento sito al terzo piano servito da ascensore, composto da: ingresso, soggiorno con balcone, cucina abitabile con balconata, due camere, bagno e ripostiglio. Internamente è da ristrutturare.
Luminoso con vista nel verde e silenzioso.
Euro 55.000
Disponibile nello stesso palazzo altro appartamento di 60 mq.
Grazie alla collaborazione con professionisti del settore, offriamo ai nostri clienti un servizio di consulenza dedicato per individuare le migliori soluzioni di mutuo e facilitare l'accesso al finanziamento.
IPI Genova Agency tel. 010 542009 www.ipi-agency.com Funzionario Flavio Napolitano
IPI è un gruppo specializzato nella consulenza e nei servizi immobiliari a investitori e operatori istituzionali, aziende e privati. Attraverso le diverse linee di business delle società controllate, IPI copre a 360 gradi i servizi al real-estate: gestione, valorizzazione, promozione e sviluppo immobiliare, consulenza, intermediazione, valutazioni, due diligence e analisi di mercato. IPI è anche una investment company con un rilevante patrimonio immobiliare proprio.
IPI Agency è presente sul territorio nazionale, con filiali a Torino, Milano, Genova, Firenze, Bologna, Padova, Roma, Bari e Napoli.
IPI Genova Agency
Via XII Ottobre 2-19° piano
16121 Genova
Tel. 010 542009
Mail: genova@ipi-agency.com
Caratteristiche
Superficie
83mq
Locali
6
Camere
2
Bagni
1
Stato
Libero al rogito
Classe energetica
G
Ascensore
Sì
Balcone
Presente
Posizione
Indirizzo completo
Corso Martinetti, Genova (GE)