Appartamento, Via dei Floricoltori, Genova, GE
Zona
Nervi
Asset
Residenziale
Cod.
GE-01449
Vendita
Prezzo
€ 2.900.000
394mq
Genova Nervi – Prestigioso appartamento trilivello in villa con vista mare mozzafiato
IPI Agency propone in vendita, in Via dei Floricoltori, in posizione panoramica e riservata, a pochi passi dal Parco di Nervi e dalla suggestiva passeggiata a mare, un esclusivo appartamento con piscina privata.
La proprietà, unica nel suo genere, è inserita in un contesto di assoluta privacy ed è circondata da splendidi giardini e terrazze panoramiche con vista mare.
L'appartamento si sviluppa su tre livelli, collegati da ascensore interno privato, e gode di un'esposizione privilegiata con vista aperta sul mare da tutti gli ambienti. Ogni piano dispone di spazi esterni attrezzati, ideali per vivere appieno ogni stagione.
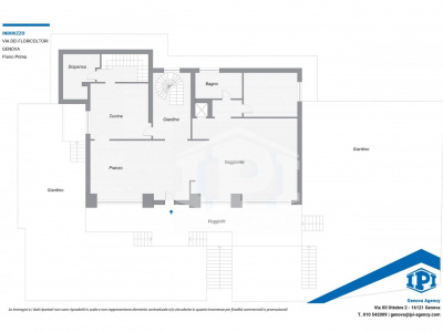
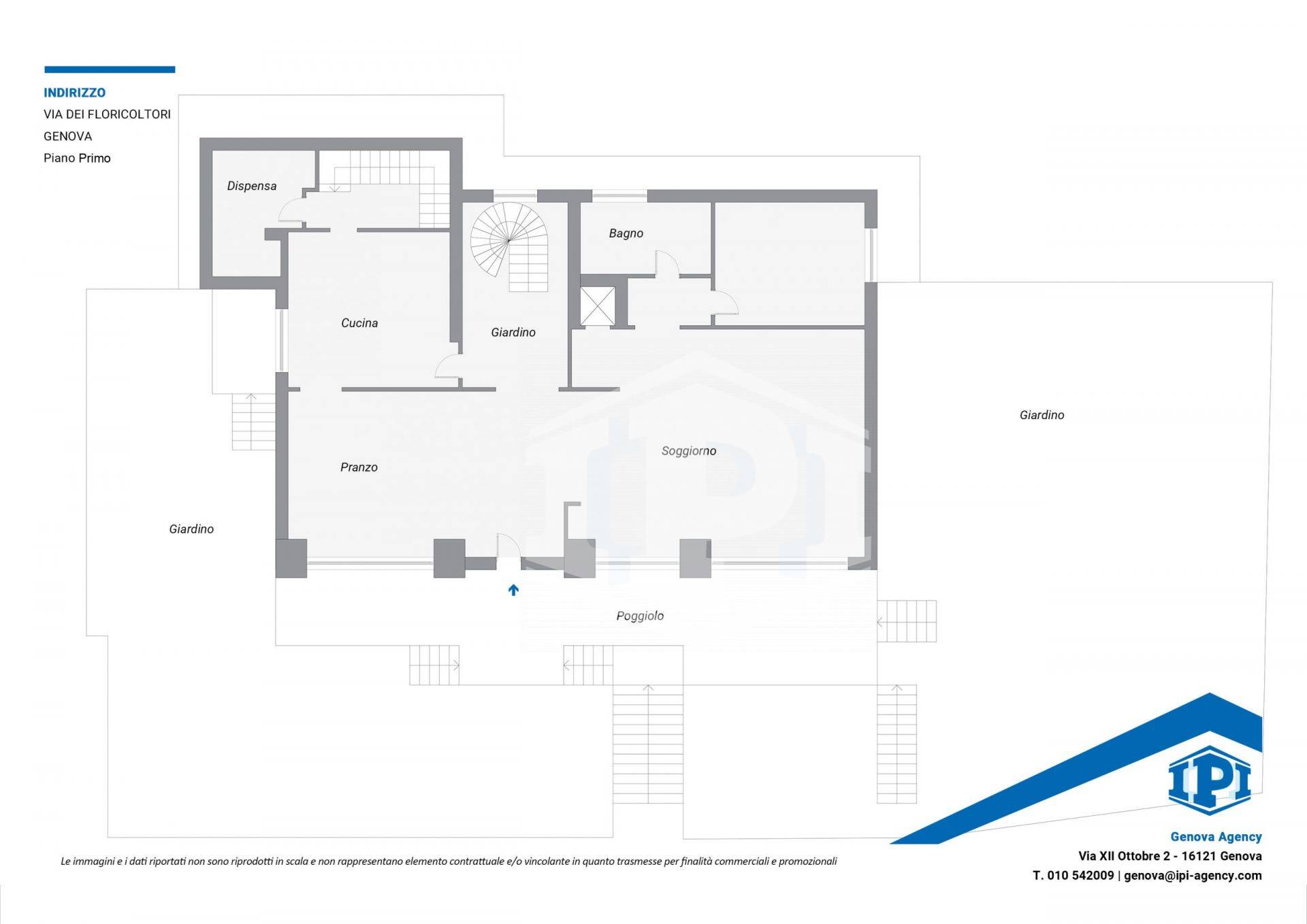
Distribuzione interna:
Piano terra:
• doppio ingresso, padronale e di servizio
• ampio salone di rappresentanza
• sala da pranzo con comoda cucina adiacente
• grande dispensa
• studio con accesso a giardino terrazzato
• bagno padronale
Piano superiore:
• tre camere da letto, di cui due con cabina armadio
• tutte le camere affacciano su una profonda e vivibile balconata panoramica
• due ampi bagni completi
Piano terra:
• locali tecnici
• lavanderia/stireria
• cantina
• bagno
• ampio garage collegato direttamente all'appartamento, anche tramite ascensore
Caratteristiche principali:
• piscina privata
• ampi giardini e terrazze panoramiche
• vista mare da ogni ambiente
• totale privacy
• 5 posti auto coperti
• 2 posti auto scoperti
• posti moto
• grande garage
• categoria catastale A/7
Completa la proprietà un caratteristico terreno a fasce coltivabile.
È inoltre possibile acquistare il piano attico, trasformando la proprietà in una villa indipendente di assoluto pregio.
Euro 2.900.000
Grazie alla collaborazione con professionisti del settore, offriamo ai nostri clienti un servizio di consulenza dedicato per individuare le migliori soluzioni di mutuo e facilitare l'accesso al finanziamento.
IPI Genova Agency tel. 010 542009 www.ipi-agency.com Funzionario Emanuela D'Aiello
IPI è un gruppo specializzato nella consulenza e nei servizi immobiliari a investitori e operatori istituzionali, aziende e privati. Attraverso le diverse linee di business delle società controllate, IPI copre a 360 gradi i servizi al real-estate: gestione, valorizzazione, promozione e sviluppo immobiliare, consulenza, intermediazione, valutazioni, due diligence e analisi di mercato. IPI è anche una investment company con un rilevante patrimonio immobiliare proprio.
IPI Agency è presente sul territorio nazionale, con filiali a Torino, Milano, Genova, Firenze, Bologna, Padova, Roma, Bari e Napoli.
IPI Genova Agency
Via XII Ottobre 2-19° piano
16121 Genova
Tel. 010 542009
Mail: genova@ipi-agency.com
IPI Agency propone in vendita, in Via dei Floricoltori, in posizione panoramica e riservata, a pochi passi dal Parco di Nervi e dalla suggestiva passeggiata a mare, un esclusivo appartamento con piscina privata.
La proprietà, unica nel suo genere, è inserita in un contesto di assoluta privacy ed è circondata da splendidi giardini e terrazze panoramiche con vista mare.
L'appartamento si sviluppa su tre livelli, collegati da ascensore interno privato, e gode di un'esposizione privilegiata con vista aperta sul mare da tutti gli ambienti. Ogni piano dispone di spazi esterni attrezzati, ideali per vivere appieno ogni stagione.
Distribuzione interna:
Piano terra:
• doppio ingresso, padronale e di servizio
• ampio salone di rappresentanza
• sala da pranzo con comoda cucina adiacente
• grande dispensa
• studio con accesso a giardino terrazzato
• bagno padronale
Piano superiore:
• tre camere da letto, di cui due con cabina armadio
• tutte le camere affacciano su una profonda e vivibile balconata panoramica
• due ampi bagni completi
Piano terra:
• locali tecnici
• lavanderia/stireria
• cantina
• bagno
• ampio garage collegato direttamente all'appartamento, anche tramite ascensore
Caratteristiche principali:
• piscina privata
• ampi giardini e terrazze panoramiche
• vista mare da ogni ambiente
• totale privacy
• 5 posti auto coperti
• 2 posti auto scoperti
• posti moto
• grande garage
• categoria catastale A/7
Completa la proprietà un caratteristico terreno a fasce coltivabile.
È inoltre possibile acquistare il piano attico, trasformando la proprietà in una villa indipendente di assoluto pregio.
Euro 2.900.000
Grazie alla collaborazione con professionisti del settore, offriamo ai nostri clienti un servizio di consulenza dedicato per individuare le migliori soluzioni di mutuo e facilitare l'accesso al finanziamento.
IPI Genova Agency tel. 010 542009 www.ipi-agency.com Funzionario Emanuela D'Aiello
IPI è un gruppo specializzato nella consulenza e nei servizi immobiliari a investitori e operatori istituzionali, aziende e privati. Attraverso le diverse linee di business delle società controllate, IPI copre a 360 gradi i servizi al real-estate: gestione, valorizzazione, promozione e sviluppo immobiliare, consulenza, intermediazione, valutazioni, due diligence e analisi di mercato. IPI è anche una investment company con un rilevante patrimonio immobiliare proprio.
IPI Agency è presente sul territorio nazionale, con filiali a Torino, Milano, Genova, Firenze, Bologna, Padova, Roma, Bari e Napoli.
IPI Genova Agency
Via XII Ottobre 2-19° piano
16121 Genova
Tel. 010 542009
Mail: genova@ipi-agency.com
Caratteristiche
Superficie
394mq
Locali
13
Camere
3
Bagni
3
Stato
Libero al rogito
Classe energetica
G
Ascensore
Sì
Balcone
Presente
Terrazzo
Presente
Giardino
Privato
Cantina
Sì
Box
Doppio
Posto auto
Coperto
Posizione
Indirizzo completo
Via Dei Floricoltori, Genova (GE)