Monolocale Via XX Settembre, Cervia Centro, Quadrilatero
Zona
Cervia Centro
Asset
Residenziale
Cod.
BO-00354
Vendita
Prezzo
€ 139.000
69mq
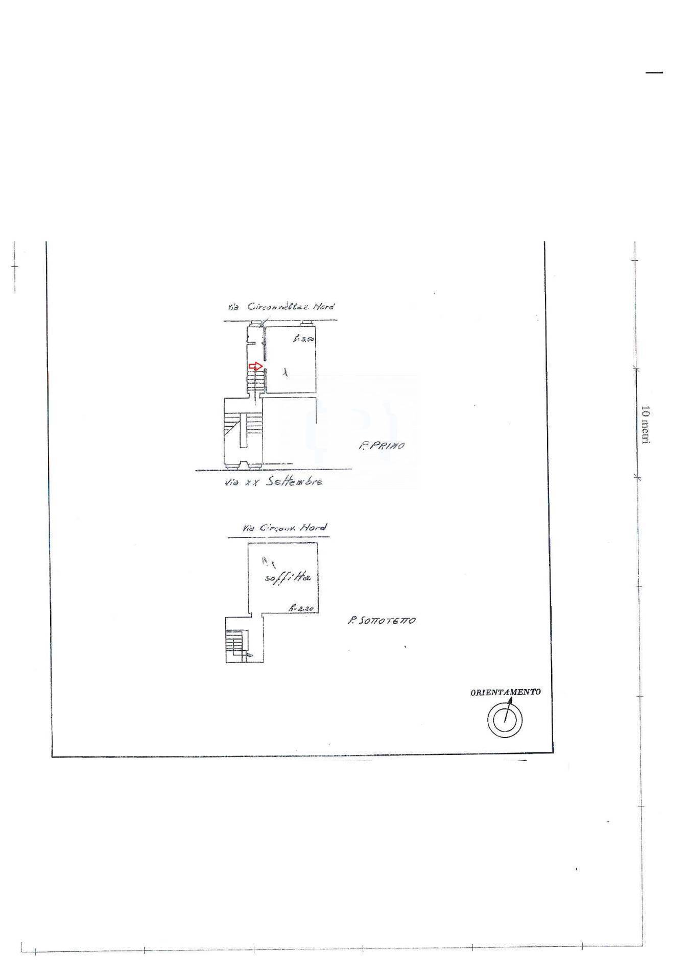
CERVIA CENTRO - All'interno dello storico complesso denominato Quadrilatero, APPARTAMENTO sito al primo piano, costituito da ampio locale open-space oltre a soffitta sovrastante, della stessa ampiezza dell'abitazione, attualmente accessibile dalla scala condominiale. Lo stato conservativo è da ristrutturare integralmente.
Immobile ideale anche per investimento.
L'ubicazione nel cuore del centro storico di Cervia offre la comodità di tutti i servizi a portata di mano e la vicinanza al mare. A circa 800 metri si trovano le spiagge con gli stabilimenti balneari. L'immobile è raggiungibile dalla vicina stazione ferroviaria, è servito dai trasporti pubblici e in zona si trovano parcheggi pubblici. Cervia è una località balneare rinomata e una cittadina molto vivace e frequentata durante tutto l'anno, ricca di servizi, attrazioni turistico-culturali e bellezze storiche e naturali semplici da raggiungere.
"IPI è un gruppo specializzato nella consulenza e nei servizi immobiliari a investitori e operatori istituzionali, aziende e privati. Attraverso le diverse linee di business delle società controllate, IPI copre a 360 gradi i servizi al real-estate: gestione, valorizzazione, promozione e sviluppo immobiliare, consulenza, intermediazione, valutazioni, due diligence e analisi di mercato. IPI è anche una investment company con un rilevante patrimonio immobiliare proprio.
IPI Agency è presente sul territorio nazionale, con filiali a Torino, Milano, Genova, Bologna, Padova, Firenze, Roma, Napoli e Bari."
Immobile ideale anche per investimento.
L'ubicazione nel cuore del centro storico di Cervia offre la comodità di tutti i servizi a portata di mano e la vicinanza al mare. A circa 800 metri si trovano le spiagge con gli stabilimenti balneari. L'immobile è raggiungibile dalla vicina stazione ferroviaria, è servito dai trasporti pubblici e in zona si trovano parcheggi pubblici. Cervia è una località balneare rinomata e una cittadina molto vivace e frequentata durante tutto l'anno, ricca di servizi, attrazioni turistico-culturali e bellezze storiche e naturali semplici da raggiungere.
"IPI è un gruppo specializzato nella consulenza e nei servizi immobiliari a investitori e operatori istituzionali, aziende e privati. Attraverso le diverse linee di business delle società controllate, IPI copre a 360 gradi i servizi al real-estate: gestione, valorizzazione, promozione e sviluppo immobiliare, consulenza, intermediazione, valutazioni, due diligence e analisi di mercato. IPI è anche una investment company con un rilevante patrimonio immobiliare proprio.
IPI Agency è presente sul territorio nazionale, con filiali a Torino, Milano, Genova, Bologna, Padova, Firenze, Roma, Napoli e Bari."
Caratteristiche
Superficie
69mq
Locali
2
Camere
1
Stato
Libero al rogito
Classe energetica
G
Soffitta
Sì
Posizione
Indirizzo completo
Via XX Settembre, Cervia