
Trilocale in Corso Turati (TO)
Zona
Crocetta
Asset
Residenziale
Cod.
TO-10144
Vendita
Prezzo
€ 352.000
110mq
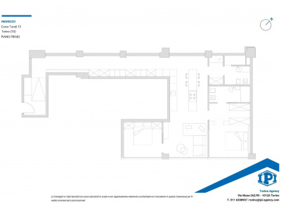
Appartamento di 110 mq composto da ingresso, ambiente open space con zona salotto e cucina, due camere da letto di cui una con cabina armadi e bagno interno, altro bagno con finestra.
Gode di esposizione a ovest, luminoso con ampia vetrata che si affaccia sul corso.
Trattandosi di una totale riqualificazione, i materiali di finitura, di prima scelta, sono personalizzabili da capitolato così come eventuali modifiche delle suddivisioni degli spazi. Infissi esterni in PVC con triplo vetro, riscaldamento centralizzato a pavimento, raffrescamento alimentato da pompe di calore condominiali e VMC (ventilazione meccanica controllata) a doppio flusso.
L'immobile viene consegnato completamente ristrutturato, ed è sito al primo piano del Garden Palace, esclusivo condominio signorile costruito negli anni '70, dotato di doppi ascensori e servizio di portineria.
NB: Le immagini sono puramente a scopo illustrativo e non sono oggetto di vincolo contrattuale.
La zona di riferimento è Crocetta, a pochi passi da Corso Sommeiller e dalla Stazione di Porta Nuova, ottimamente servita da esercizi commerciali e mezzi pubblici. Nelle vicinanze:
mt 600 dall'Ospedale Mauriziano;
mt 700 dalla fermata della metropolitana Nizza;
mt 900 da Stazione di Porta Nuova;
Km 1 da fermata metropolitana Porta Nuova;
Km 1,2 dal Parco del Valentino;
Km 1,4 dal Politecnico di Torino;
Km 2 da Inalpi Arena e Stadio Olimpico Grande Torino;
Km 2,1 da Ospedale Molinette.
Gode di esposizione a ovest, luminoso con ampia vetrata che si affaccia sul corso.
Trattandosi di una totale riqualificazione, i materiali di finitura, di prima scelta, sono personalizzabili da capitolato così come eventuali modifiche delle suddivisioni degli spazi. Infissi esterni in PVC con triplo vetro, riscaldamento centralizzato a pavimento, raffrescamento alimentato da pompe di calore condominiali e VMC (ventilazione meccanica controllata) a doppio flusso.
L'immobile viene consegnato completamente ristrutturato, ed è sito al primo piano del Garden Palace, esclusivo condominio signorile costruito negli anni '70, dotato di doppi ascensori e servizio di portineria.
NB: Le immagini sono puramente a scopo illustrativo e non sono oggetto di vincolo contrattuale.
La zona di riferimento è Crocetta, a pochi passi da Corso Sommeiller e dalla Stazione di Porta Nuova, ottimamente servita da esercizi commerciali e mezzi pubblici. Nelle vicinanze:
mt 600 dall'Ospedale Mauriziano;
mt 700 dalla fermata della metropolitana Nizza;
mt 900 da Stazione di Porta Nuova;
Km 1 da fermata metropolitana Porta Nuova;
Km 1,2 dal Parco del Valentino;
Km 1,4 dal Politecnico di Torino;
Km 2 da Inalpi Arena e Stadio Olimpico Grande Torino;
Km 2,1 da Ospedale Molinette.
Caratteristiche
Superficie
110mq
Locali
3
Camere
2
Bagni
2
Stato
Libero al rogito
Classe energetica
D
Ascensore
Sì
Portineria
Sì
Posizione
Indirizzo completo
Corso Turati 13, Torino (TO)