Trilocale pari al nuovo in Centro, Via Milazzo, Bologna (BO)
Zona
Centro storico
Asset
Residenziale
Cod.
BO-00348
Vendita
Prezzo
€ 388.000
66mq
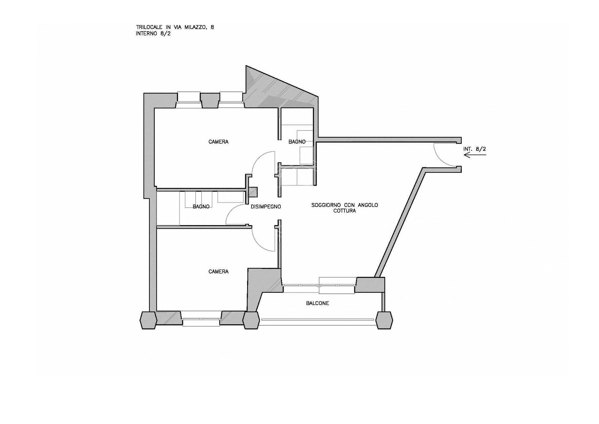
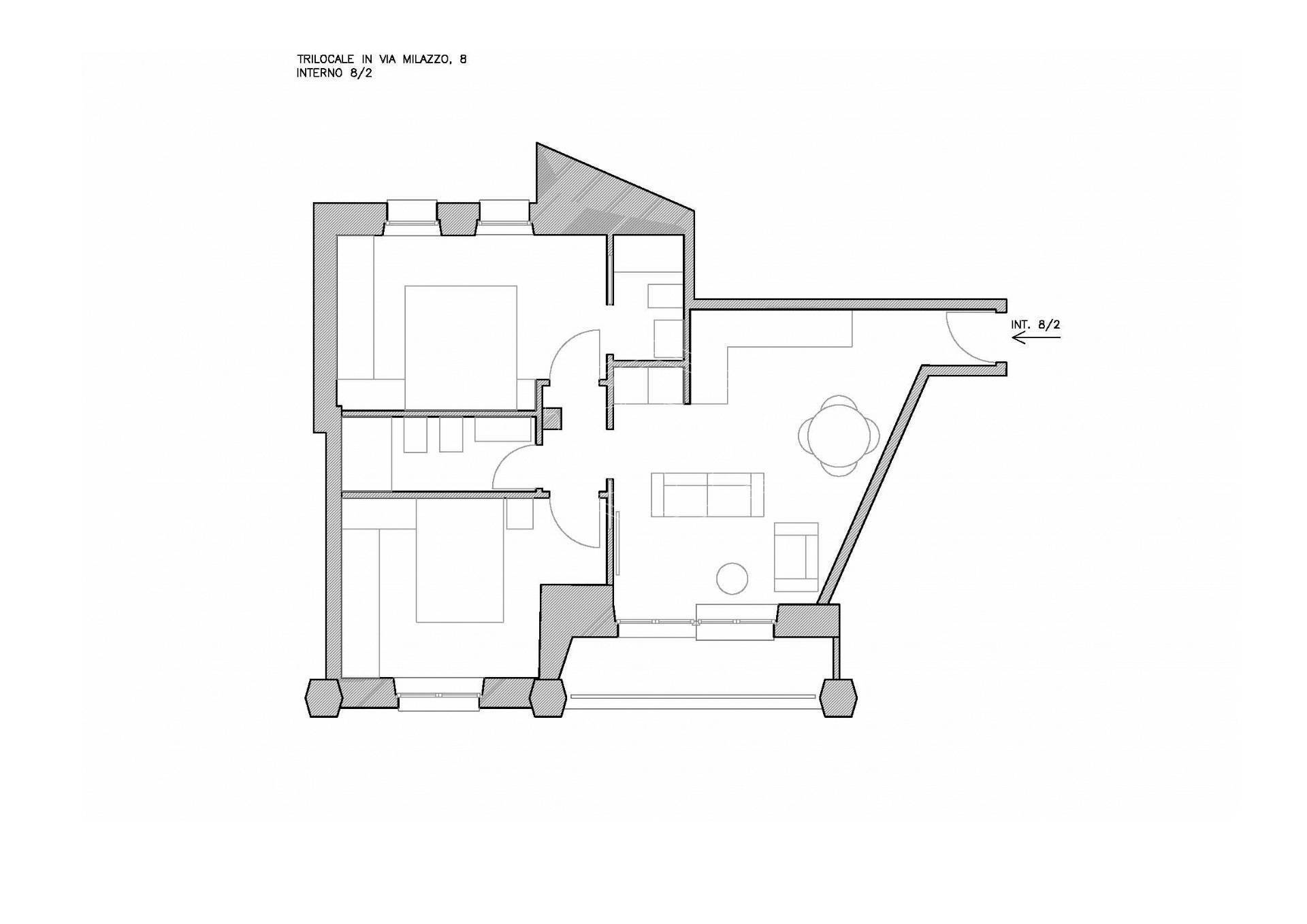
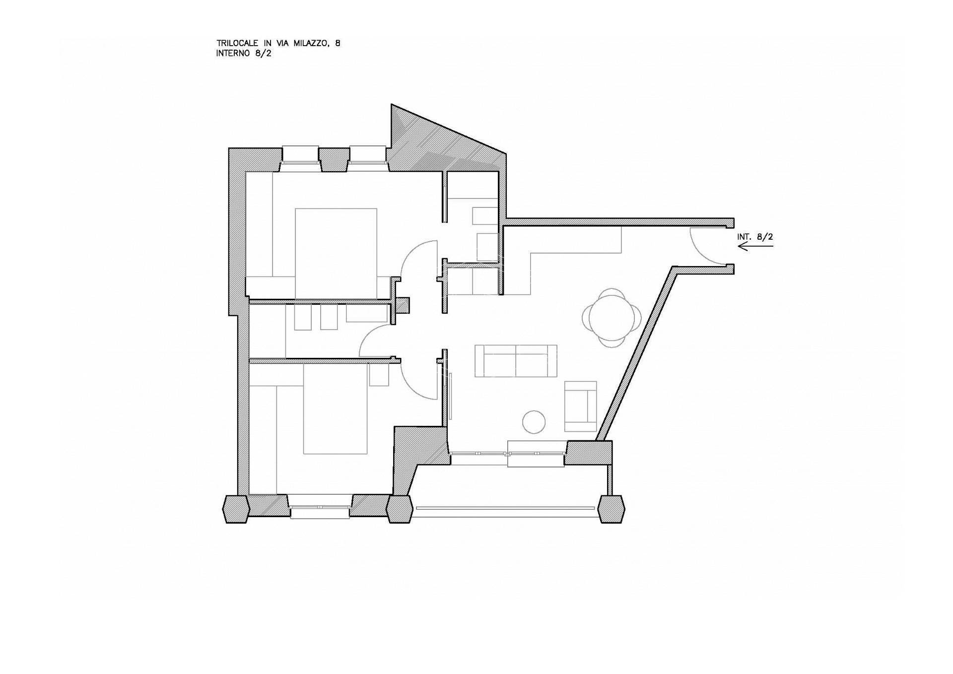
CENTRO - via Milazzo adiacenze via Gramsci - In palazzo signorile dotato di ascensore, Trilocale in corso di integrale ristrutturazione da impresa. 4° piano. Composto da ingresso, soggiorno con angolo cottura e balcone, 2 camere, 2 bagni. Volendo, c'è possibilità di acquistare una cantina. Il condominio è stato riqualificato con il superbonus110%. L'abitazione, luminosa e con doppio affaccio, viene totalmente ristrutturata a nuovo e rifinita con pavimento in parquet, infissi in PVC vetro-camera, porta blindata. Riscaldamento con conta calorie e aria condizionata.
L'immobile è adatto anche come investimento.
La zona è centrale, ricca di servizi, con buona viabilità ed è ben collegata anche dai trasporti pubblici. Tutti i punti di maggiore interesse storico-artistico, negozi e attività commerciali, supermercati, uffici pubblici, sono comodamente raggiungibili anche a piedi. Nelle vicinanze si trovano anche parchi, parcheggi pubblici, inoltre locali gastronomici, cinema e teatri. A pochi minuti a piedi da piazza Maggiore e dalla Stazione Centrale.
"IPI è un gruppo specializzato nella consulenza e nei servizi immobiliari a investitori e operatori istituzionali, aziende e privati. Attraverso le diverse linee di business delle società controllate, IPI copre a 360 gradi i servizi al real-estate: gestione, valorizzazione, promozione e sviluppo immobiliare, consulenza, intermediazione, valutazioni, due diligence e analisi di mercato. IPI è anche una investment company con un rilevante patrimonio immobiliare proprio.
IPI Agency è presente sul territorio nazionale, con filiali a Torino, Milano, Genova, Bologna, Padova, Firenze, Roma, Napoli e Bari."
L'immobile è adatto anche come investimento.
La zona è centrale, ricca di servizi, con buona viabilità ed è ben collegata anche dai trasporti pubblici. Tutti i punti di maggiore interesse storico-artistico, negozi e attività commerciali, supermercati, uffici pubblici, sono comodamente raggiungibili anche a piedi. Nelle vicinanze si trovano anche parchi, parcheggi pubblici, inoltre locali gastronomici, cinema e teatri. A pochi minuti a piedi da piazza Maggiore e dalla Stazione Centrale.
"IPI è un gruppo specializzato nella consulenza e nei servizi immobiliari a investitori e operatori istituzionali, aziende e privati. Attraverso le diverse linee di business delle società controllate, IPI copre a 360 gradi i servizi al real-estate: gestione, valorizzazione, promozione e sviluppo immobiliare, consulenza, intermediazione, valutazioni, due diligence e analisi di mercato. IPI è anche una investment company con un rilevante patrimonio immobiliare proprio.
IPI Agency è presente sul territorio nazionale, con filiali a Torino, Milano, Genova, Bologna, Padova, Firenze, Roma, Napoli e Bari."
Caratteristiche
Superficie
66mq
Locali
3
Camere
2
Bagni
2
Stato
Libero al rogito
Classe energetica
D
Ascensore
Sì
Balcone
Presente
Posizione
Indirizzo completo
Via Milazzo, Bologna (BO)