Villa indipendente con giardino privato in Via Della Concordia 85 - Mendicino (CS)
Zona
Di Pasquali
Asset
Residenziale
Cod.
MI-00195
Vendita
Prezzo
€ 180.000
323mq
Villa indipendente con giardino privato in vendita a Mendicino (CS)
A pochi minuti dal centro di Cosenza, in posizione residenziale e panoramica, in Contrada Pasquali, Via della Concordia 85 nel comune di Mendicino, IPI Agency propone in vendita interessante villa indipendente di circa 323 mq, circondata da giardino privato in parte piastrellato, ideale per chi desidera spazio e vivere momenti di relax e convivialità all'aperto.
La proprietà, in classe energetica E, si sviluppa su due livelli oltre sottotetto allo stato rustico personalizzabile, offrendo ampi spazi interni luminosi e ben distribuiti e la possibilità di personalizzazione secondo le proprie esigenze abitative.
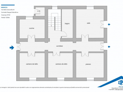
Al piano terra si apre un ampio e accogliente ingresso che conduce ad un grande e luminoso soggiorno impreziosito da un camino, ideale per creare un'atmosfera calda ed elegante, una sala da pranzo, una cucina abitabile in muratura spaziosa e funzionale, dispensa, bagno padronale e lavanderia.
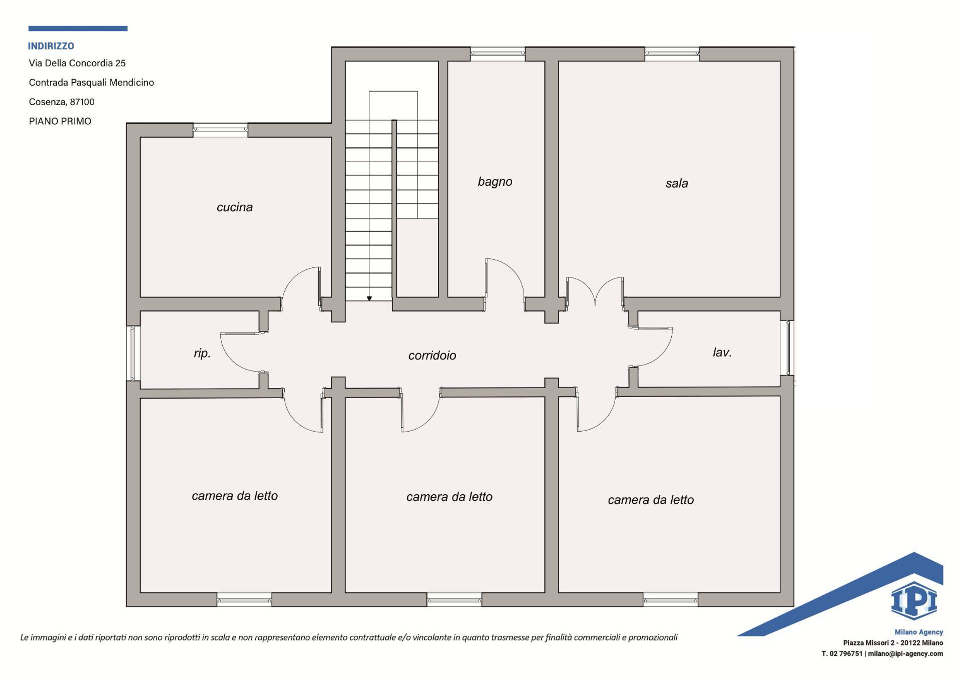
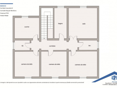
Il primo piano ospita la zona notte, pensata per garantire privacy e comfort, con quattro spaziose camere da letto matrimoniali, uno studio con camino ideale anche come area lavoro o relax e due bagni, di cui uno en suite.
La villa si presenta in ottimo stato di manutenzione ed offre dotazioni di qualità come infissi in legno/alluminio con vetrocamera antisfondamento, porta blindata, pavimentazione in marmo rustico e impianto di climatizzazione caldo/freddo in tutti gli ambienti.
L'orientamento sud-est garantisce un'eccellente luminosità naturale durante tutto l'arco della giornata.
Completano la proprietà il posto auto scoperto e il cancello automatico.
Una opportunità e una soluzione ideale per chi desidera vivere in una villa indipendente elegante e spaziosa, senza rinunciare alla vicinanza alla città e dove spazio, luce e tranquillità si fondono per creare un ambiente ideale per tutta la famiglia.
Per ulteriori informazioni, contattare IPI Agency - tel. 02796751 milano@ipi-agency.com
IPI è un gruppo specializzato nella consulenza e nei servizi immobiliari a investitori e operatori istituzionali, aziende e privati. Attraverso le diverse linee di business delle società controllate, IPI copre a 360 gradi i servizi al real-estate: gestione, valorizzazione, promozione e sviluppo immobiliare, consulenza, intermediazione, valutazioni, due diligence e analisi di mercato. IPI è anche una investment company con un rilevante patrimonio immobiliare proprio.
IPI Agency è presente sul territorio nazionale, con filiali a Torino, Milano, Genova, Bologna, Padova, Firenze, Roma, Napoli e Bari.
Filiale di Milano
Piazza Missori 2
20122 Milano
Tel. 02796751
milano@ipi-agency.com
www.ipi-agency.com
A pochi minuti dal centro di Cosenza, in posizione residenziale e panoramica, in Contrada Pasquali, Via della Concordia 85 nel comune di Mendicino, IPI Agency propone in vendita interessante villa indipendente di circa 323 mq, circondata da giardino privato in parte piastrellato, ideale per chi desidera spazio e vivere momenti di relax e convivialità all'aperto.
La proprietà, in classe energetica E, si sviluppa su due livelli oltre sottotetto allo stato rustico personalizzabile, offrendo ampi spazi interni luminosi e ben distribuiti e la possibilità di personalizzazione secondo le proprie esigenze abitative.
Al piano terra si apre un ampio e accogliente ingresso che conduce ad un grande e luminoso soggiorno impreziosito da un camino, ideale per creare un'atmosfera calda ed elegante, una sala da pranzo, una cucina abitabile in muratura spaziosa e funzionale, dispensa, bagno padronale e lavanderia.
Il primo piano ospita la zona notte, pensata per garantire privacy e comfort, con quattro spaziose camere da letto matrimoniali, uno studio con camino ideale anche come area lavoro o relax e due bagni, di cui uno en suite.
La villa si presenta in ottimo stato di manutenzione ed offre dotazioni di qualità come infissi in legno/alluminio con vetrocamera antisfondamento, porta blindata, pavimentazione in marmo rustico e impianto di climatizzazione caldo/freddo in tutti gli ambienti.
L'orientamento sud-est garantisce un'eccellente luminosità naturale durante tutto l'arco della giornata.
Completano la proprietà il posto auto scoperto e il cancello automatico.
Una opportunità e una soluzione ideale per chi desidera vivere in una villa indipendente elegante e spaziosa, senza rinunciare alla vicinanza alla città e dove spazio, luce e tranquillità si fondono per creare un ambiente ideale per tutta la famiglia.
Per ulteriori informazioni, contattare IPI Agency - tel. 02796751 milano@ipi-agency.com
IPI è un gruppo specializzato nella consulenza e nei servizi immobiliari a investitori e operatori istituzionali, aziende e privati. Attraverso le diverse linee di business delle società controllate, IPI copre a 360 gradi i servizi al real-estate: gestione, valorizzazione, promozione e sviluppo immobiliare, consulenza, intermediazione, valutazioni, due diligence e analisi di mercato. IPI è anche una investment company con un rilevante patrimonio immobiliare proprio.
IPI Agency è presente sul territorio nazionale, con filiali a Torino, Milano, Genova, Bologna, Padova, Firenze, Roma, Napoli e Bari.
Filiale di Milano
Piazza Missori 2
20122 Milano
Tel. 02796751
milano@ipi-agency.com
www.ipi-agency.com
Caratteristiche
Superficie
323mq
Locali
8
Camere
5
Bagni
3
Stato
Libero al rogito
Classe energetica
E
Giardino
Privato
Soffitta
Sì
Posto auto
Coperto
Posizione
Indirizzo completo
Via Della Concordia 85, Mendicino